Paul de Ruiter
Architects

Hogeschool Rotterdam Business School

In verbinding met de wereld

1932 Aiste Rakauskaite website 1
1932 Aiste Rakauskaite Droneshot
1932 Aiste Rakauskaite High Angle Droneshot
1932 Aiste Rakauskaite Atrium Evening
1932 Aiste Rakauskaite Atrium Downward
1932 Aiste Rakauskaite Cafeteria
1932 Aiste Rakauskaite Atrium White
1932 Aiste Rakauskaite Entrancehall
1932 Aiste Rakauskaite Entrancehall II
1932 Aiste Rakauskaite Atrium Green Stairs
1932 Aiste Rakauskaite Green Stairs
1932 Aiste Rakauskaite Window Atriumview
1 / 12

Voor de Hogeschool Rotterdam ontwierpen wij een inspirerende en duurzame onderwijsomgeving, waar de economen en bedrijfskundigen van de toekomst worden opgeleid. Het duurzame gebouw is energieneutraal, flexibel en circulair en kwam tot stand met studenten die in een klankbordgroep meedachten over hun ideale studieomgeving.

Thema's:
Onderwijs, Energieneutraal, Innovatief klimaatsysteem, Frisse School

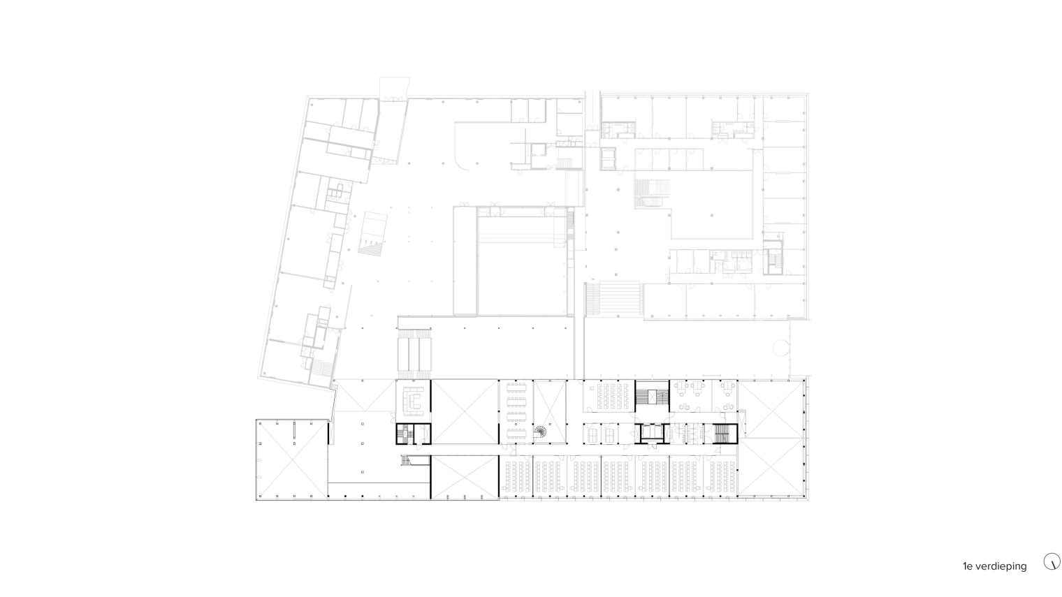
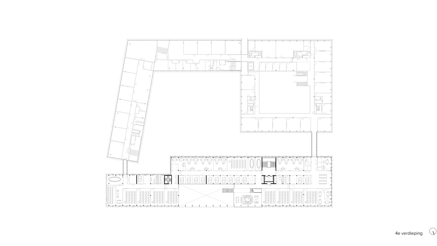
Het nieuwe gebouw van 15.300 m² is de thuisbasis van alle economische opleidingen die zijn ondergebracht in de Hogeschool Rotterdam Business School. Het gebouw sluit aan op het bestaande onderwijscomplex dat in totaal 35.000 m² groot is en ruimte biedt aan maar liefst 10.000 studenten. Het onderwijscomplex, waarvan Paul de Ruiter Architects in 2018 al een belangrijk onderdeel ontwierp, heeft met de nieuwbouw onder andere meer studielandschappen en een nieuwe hoofdentree gekregen. Door de transparante plint, waar de mediatheek, de incubatorzone met businesslobby en een grand café huizen, is dit nu het levendige hart van de campus.
 

In verbinding met de wereld

In het ontwerp staan openheid en verbinding centraal. Het gebouw valt op door een groot trapsgewijs oplopend glazen atrium met een robuuste houtconstructie aan de noordgevel en de monumentale hoofdentree.

De houten trappen liggen direct aan de glazen gevel van het atrium en verbinden de verschillende verdiepingen en studiepleinen van het gebouw. De wand van het atrium wordt gevormd door diverse transparante projectruimtes die, net als de trappen, een uitzicht bieden op campus. Omgekeerd geeft de transparante gevel vanaf de campus vrij zicht op de beweging en uiteenlopende activiteiten die zich in het gebouw afspelen. Het transparante karakter van het gebouw haalt de buitenwereld binnen en brengt de binnenwereld naar buiten.

"Het transparante karakter van het gebouw haalt de buitenwereld binnen en brengt de binnenwereld naar buiten."

De wens van de student als basis voor het ideale onderwijsgebouw

Studenten zijn de grootste groep gebruikers van het gebouw. Daarom organiseerden we een workshop met studenten van de hogeschool, waarin zij hun visie op de ideale onderwijsomgeving konden toelichten.

Omdat ze veel tijd op school doorbrengen, bleken de studenten vooral behoefte te hebben aan een gevarieerd aanbod van ruimtes binnen één gebouw; om te studeren in stilte of met anderen maar ook om te ontspannen. Deze wens is terug te vinden in de diversiteit aan flexibele werkplekken en publieke ruimtes die lijken op de publieke plekken in een grote openbare bibliotheek. De ontmoetingsruimtes zijn te typeren als werkcafé of de lobby van een hotel en de plekken voor ontspanning voelen aan als een huiskamer. Er is dus genoeg ruimte voor informele kennisuitwisseling, interactie en ontspanning maar er zijn ook afgeschermde rustige studieplekken om geconcentreerd te kunnen werken.

"Er is genoeg ruimte voor informele kennisuitwisseling, interactie en ontspanning maar ook afgeschermde rustige studieplekken om geconcentreerd te kunnen werken. "

Een toekomstbestendige basis voor flexibel gebruik

Het onderwijs is veel veranderd de afgelopen twintig jaar, en als er één ding vast staat, is dat het de komende twintig jaar nog veel zal blijven veranderen. Denk aan: nieuwe technieken, ontwikkeling in onderwijsconcepten, en de veranderingen in studentenaantallen van studierichtingen. Om hierop in te kunnen spelen hebben we het uiterst duurzame onderwijsgebouw zo ontworpen dat de verschillende ruimtes van het gebouw flexibel in te delen zijn. Daarnaast sluiten de ver­diepingen van de nieuwbouw via loopbruggen aan op alle verdiepingen van de andere gebouwen op de campus. De komende decennia zijn er genoeg mogelijkheden binnen het gebouw om in te spelen op veranderingen in het onderwijs.

"Het uiterst duurzame onderwijsgebouw is zo ontworpen dat de verschillende ruimtes van het gebouw flexibel in te delen zijn."

Duurzaam en gezond

De onderdelen die niet flexibel zijn, zoals de draagconstructie en de gevel, zijn gemaakt van circulaire, robuuste en onderhouds­vrije materialen. Het nieuwe gebouw van Hogeschool Rotterdam is ook energieneutraal. De compacte bouwvorm, hoogwaardige isolatie en op bezetting gestuurde installaties verminderen het energieverlies. De nodige energie wordt opgewekt door onder andere zonnecellen op het dak. Ter bevordering van welzijn en gezondheid is veel aandacht besteed aan de aanvoer van verse lucht, een aangename ruimte-akoestiek en goed gemonitorde en geregelde temperatuurcondities. Ook een maximale hoeveelheid daglicht is belangrijk voor een gezond binnenklimaat. Zo kan via het dak van atrium en de glazen gevel daglicht gecontroleerd binnenvallen.

Project details

Gegevens

Naam en plaats Hogeschool Rotterdam, Rotterdam
Adres Kralingse Zoom 91
Bruto vloeroppervlak 15.300 m2
Programma Flexibel, multifunctioneel onderwijsgebouw
Oplevering 2023
Duurzaamheidskenmerken energie neutraal

Ontwerpteam

Opdrachtgever Hogeschool Rotterdam
Project architect Paul de Ruiter & Raymond van Sabben
Project team Jolien Bruin, Julius Klatte, Mark Homminga, Paul Bordei, Sander Bakker, Vera Laitão, Yamoh Rasa
Aannemer Heerkens van Bavel Bouw
Adviseur constructie Pieters Bouwtechniek
Adviseur installaties Valstar Simonis
Adviseur bouwfysica DGMR
Interieur Architect Studio Groen+Schild
Stedenbouwkundige Juurlink+Geluk
Adviseur kosten IGG Bouweconomie
Renders Paul de Ruiter Architects, Pixelpool
Fotografie Aiste Rakauskaite

Deel deze pagina