1930 Langeveld Building Paul de Ruiter Architects Aiste Rakauskaite 01
Aiste Rakauskaite 13 221110 215415
1930 Langeveld Building Paul de Ruiter Architects Aiste Rakauskaite 07
Aiste Rakauskaite 11
Aiste Rakauskaite 9
Aiste Rakauskaite 6
Aiste Rakauskaite 4 221110 215100
1930 Langeveld Building Paul de Ruiter Architects Aiste Rakauskaite 05
1930 Langeveld Building Paul de Ruiter Architects Aiste Rakauskaite 17
1930 Langeveld Building Paul de Ruiter Architects Aiste Rakauskaite 18
Aiste Rakauskaite 19
1930 Langeveld Building Paul de Ruiter Architects Aiste Rakauskaite 16 web
1930 Langeveld Building Paul de Ruiter Architects Eric Fecken 77
1930 Langeveld Building EWF Paul de Ruiter Architects Eric Fecken 74
1930 Langeveld Building toevoer web
1930 Langeveld Building afvoer web
1930 Langeveld Building plattegronden BG web
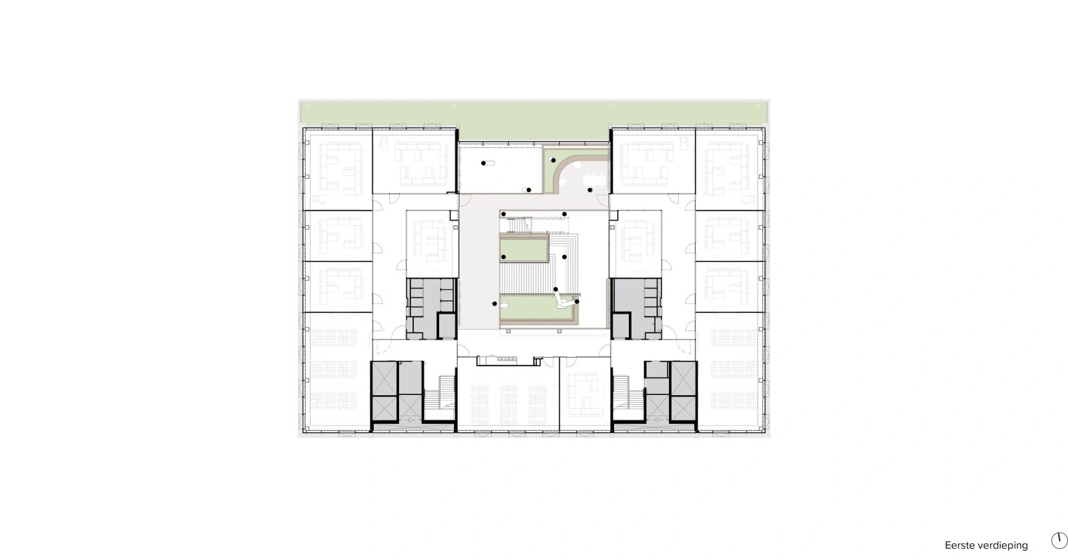
1930 Langeveld Building plattegronden 01 web
1930 Langeveld Building plattegronden 02 web
1930 Langeveld Building plattegronden 03 web
1930 Langeveld Building plattegronden 04 web
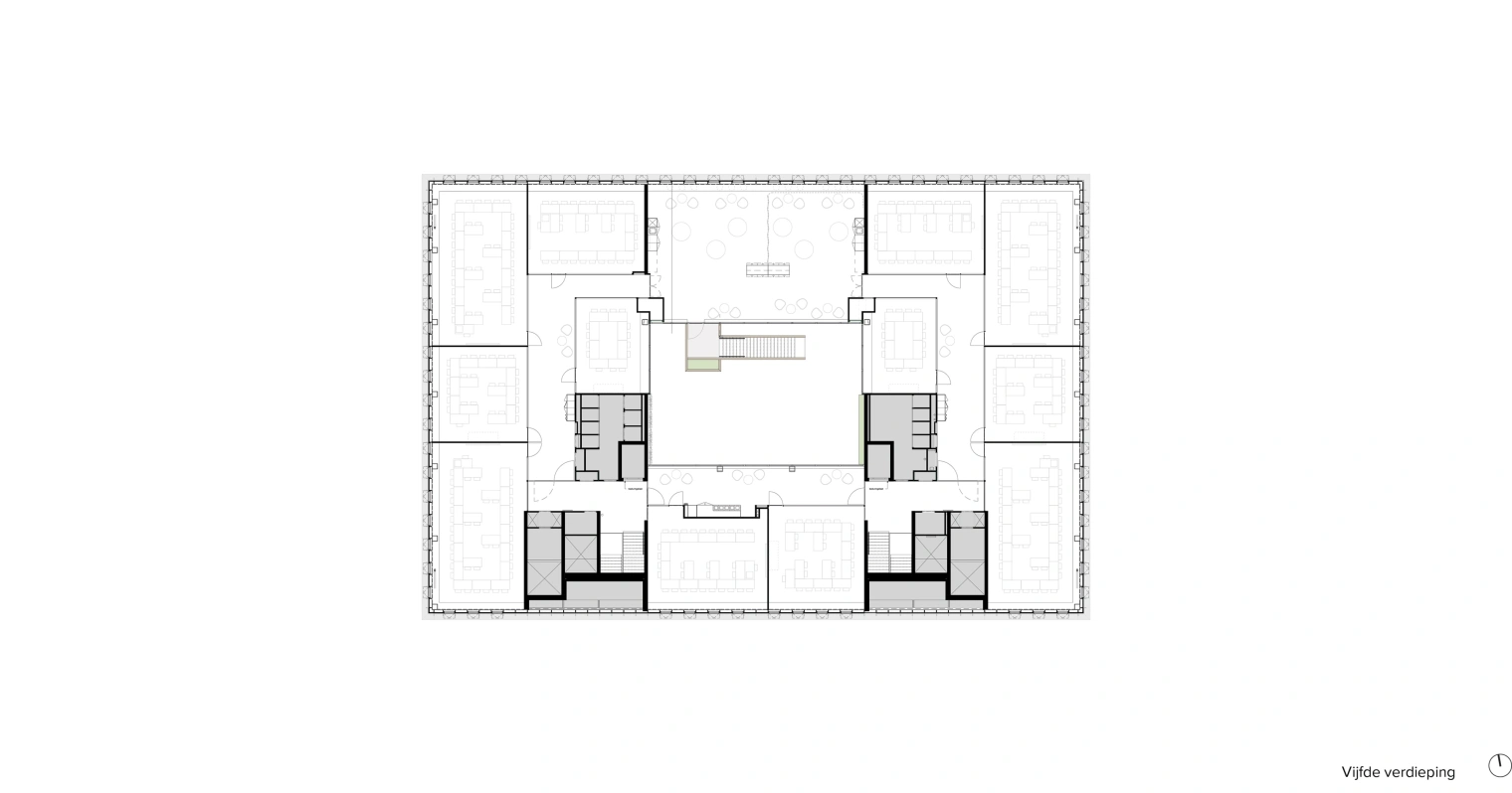
1930 Langeveld Building plattegronden 05 web
1930 Langeveld Building gevelaanzichten web
1930 Langeveld Building doorsneden atrium web
1930 Langeveld Building conceptschets web
1 / 26

Langeveld Building

Terug naar het overzicht

Ter ere van Henny Langeveld, de eerste vrouwelijke hoogleraar aan de Erasmus Universiteit Rotterdam, symboliseert Langeveld Building een nieuwe generatie onderwijsgebouwen. Met een BREEAM-Outstanding score van 91,50% en het revolutionaire EWF-ventilatiesysteem, geïnspireerd op de natuurlijke ventilatie van termietenheuvels, verbruikt het gebouw 85% minder energie. Het is daarmee één van de meest duurzame en gezonde universiteitsgebouwen van Nederland, waar dagelijks zo'n 3.000 studenten gebruik van maken.

Studeren in het groen

Studenten speelden een belangrijke rol in het ontwerpproces van Langeveld Building en uitten tijdens moodboard sessies de wens voor een huiselijk gebouw met veel groen. Het centrale atrium, liefkozend de "boomhut" genoemd, bevat echte, onbehandelde boomstammen die de natuur naar binnen brengen. Meerdere studieplatforms en een centrale trap stimuleren fysieke activiteit en creëren een dynamische, open omgeving die tegemoetkomt aan diverse studievoorkeuren. Of het nu gaat om samenwerken, ontspannen of geconcentreerd werken: de platforms bieden brede tafels met uitzicht op weelderig groen voor individueel werk, grotere tafels voor groepswerk en meer huiselijke zitplekken. De transparante gevel laat volop daglicht binnen, waardoor een lichte en inspirerende ruimte ontstaat waarin groen kan floreren.

Flexibel naar de toekomst

De flexibele indeling faciliteert diverse hybride werk- en onderwijsvormen, zodat het gebouw zich kan aanpassen aan veranderende behoeften. Collegezalen bieden ruimte voor onderwijs, samenwerking en stiltewerk. Het atrium vormt een visuele verbinding tussen het interieur en het levendige plein buiten. Ook de plantenbakken strekken zich uit van binnen naar buiten en bieden zo een habitat voor inheemse planten en nestgelegenheid voor vogels en insecten. Deze doordachte integratie van groen verhoogt niet alleen de ecologische waarde van het gebouw, maar creëert ook een kalmerende omgeving voor de gebruikers. Met een BREEAM-Outstanding score van 91,5% en een energiepositieve prestatie zet het Langeveldgebouw een nieuwe standaard voor duurzame leeromgevingen. De bouw is uitgevoerd volgens circulaire principes, met gebruik van gerecyclede, biobased en hergebruikte materialen afkomstig van sloopprojecten binnen de universiteit. Het hout is verantwoord gewonnen uit een beschermd Nederlands productiebos, wat de ecologische voetafdruk van het gebouw minimaliseert.

Powered by nature

Een grote duurzaamheidsuitdaging voor onderwijsgebouwen is het verlagen van het energieverbruik terwijl er toch voldoende frisse lucht wordt geboden voor een aangename en gezonde studieomgeving. Het Langeveldgebouw biedt hierop een baanbrekend antwoord met het innovatieve "Powered by Nature" EWF-ventilatiesysteem. Dit systeem, gebaseerd op promotieonderzoek van de Technische Universiteit Delft naar de natuurlijke ventilatieprincipes van termietenheuvels, maakt slim gebruik van zon en wind om het gebouw op natuurlijke wijze te ventileren. Dit verlaagt het energieverbruik met maar liefst 85% en laat tegelijkertijd aanzienlijk meer frisse lucht binnen, wat zowel de productiviteit als het welzijn bevordert. Dit is de wereldwijde primeur van dit revolutionaire systeem en zet een nieuwe architectonische standaard. Het nieuwe universiteitsgebouw is circulair gebouwd. Dit betekent dat zo veel mogelijk gebruik wordt gemaakt van gerecyclede materialen. Sloopmateriaal van andere panden, waaronder gebouwen van de EUR, is hergebruikt en het materiaal dat in het nieuwe onderwijsgebouw is verwerkt is vervolgens ook vastgelegd in een eigen materialenpaspoort.

Programma
Onderwijsgebouw
Locatie
Kralingse Zoom, Rotterdam
Oplevering
2022
Opdrachtgever
Erasmus Universiteit Rotterdam
Betrokken partijen
BAM Bouw & Techniek Projecten, BAM Advies en Engineering, Halmos Adviseurs, LBP|Sight, Marina van Goor, Buro Harro Landschapsarchitect, abcnova, Mat25
Fotografie
Aiste Rakauskaite
Awards
Winnaar FRAME awards 2024, Shortlist Dura Prijs 'Luwte in de Stad' 2024, shortlist BREEAM Awards, nominatie ARC24, nominatie Herengracht Industrie Prijs (HIP) 2024, shortlist Rotterdamse Architectuurprijs 2023, nominatie Houtbouwprijs 2023, Cobouw Duurzaamheidsaward 2023