Paul de Ruiter
Architects

HAVEP

Het meest circulaire utiliteitsgebouw van de Benelux

HAVEP Ossip van Duivenbode 002 2
HAVEP Ossip van Duivenbode 004 2
HAVEP Ossip van Duivenbode 022 2
HAVEP Ossip van Duivenbode 027 2
HAVEP Ossip van Duivenbode 045 2
HAVEP Ossip van Duivenbode 020b 2
HAVEP Ossip van Duivenbode 052 2
HAVEP Thomas John Kuerten Design 8192 2
HAVEP Thomas John Kuerten Design 8200 2
HAVEP Thomas John Kuerten Design 8221 2
HAVEP Ossip van Duivenbode 055 2
000 opening beeld
001 MX 3060 V 20191122 154904 0001
Infographic HAVEP 2
IGM PR Havep Factsheet MQ
001 NX Havep VO DEF 20200117 Pagina 48
1 / 16
Thema's:
Kantoren, Circulair, Houtbouw, Paris Proof, Energieproducerend

Nieuw gebouw HAVEP als symbool voor duurzame ondernemersvisie

In 1865 richt Hendrik van Puijenbroek de firma H. van Puijenbroek op. Met een startkapitaal van 1.500 gulden gaat hij aan de slag als linnenkoopman. Inmiddels is HAVEP in Nederland uitgegroeid tot één van de grootste spelers op het gebied van duurzame werkkleding. Het bedrijf is tot op heden nog op hetzelfde adres gevestigd als waar het in 1888 opgericht is. HAVEP vroeg Paul de Ruiter Architects om het familiebedrijf na 150 jaar te voorzien van een nieuw gebouw dat aansluit op de rijke historie en duurzame ambities van HAVEP.

Gezond paviljoen in het groen
Alle functies onder één dak in een toekomstbestendig gezond bedrijfsgebouw met een knipoog naar het verleden. Dat was de wens die HAVEP bij Paul de Ruiter Architects neerlegde. Het Amsterdamse architectenbureau gespecialiseerd in duurzame architectuur vertaalde deze wens naar een circulair ontwerp met veel natuurlijke materialen dat qua vorm duidelijk verwijst naar het voormalige bedrijfsgebouw.

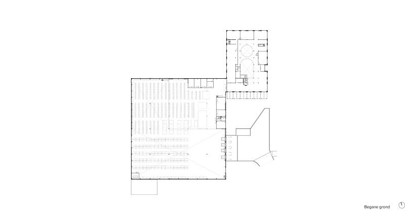
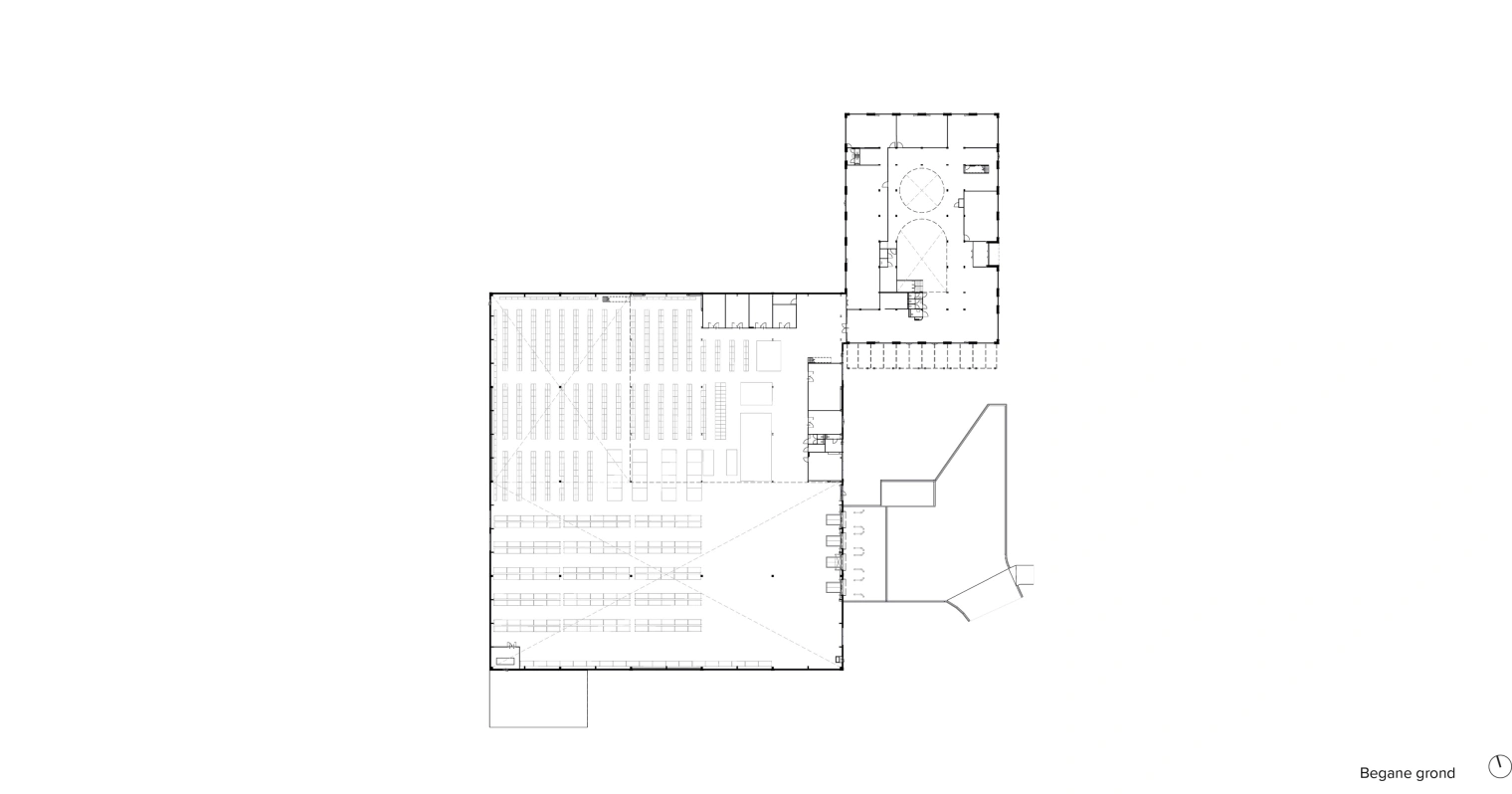
Het project bestaat uit een hoofdgebouw en een warehouse. Door twee compacte volumes te ontwerpen die flexibel en multifunctioneel ingedeeld kunnen worden, is zo min mogelijk kostbare grondstof nodig. Het hoofdgebouw van 3.000 m² heeft een transparante, open en uitnodigende begane grond. Hier tref je het Texperience Center van HAVEP, het atelier en het restaurant. In het Texperience wordt de bezoeker meegenomen in de werkwijze van HAVEP van nu en de toekomst en worden de laatste duurzame producten en services getoond.

Op de verdieping zijn de kantoren gesitueerd die via twee ronde vides in verbinding staan met de begane grond. Hierdoor zijn via het Texperience Center alle processen en afdelingen zichtbaar.

Gekoppeld aan het hoofdgebouw bevindt zich het 6.000m² warehouse. De vorm van het dak van het magazijn is gebaseerd op de sheddaken van het voormalige bedrijfspand uit 1888. Deze speelse opzet is niet alleen een verwijzing naar het verleden maar biedt tevens een perfecte duurzame basis: de schuine zijden van het sheddak, gericht op het zuiden zijn ideaal voor zonnepanelen terwijl via in de noordkant daglicht toe kan treden in het warehouse zonder dat het gebouw hierdoor opwarmt. Met dit dak voorziet HAVEP in haar eigen energiebehoefte om zo tot een nul op de meter pand te komen.

Het warehouse wordt door middel van vloerverwarming op een constante temperatuur gehouden van 15 graden. Het kantoor is verwarmd en gekoeld door middel van klimaatplafonds in combinatie met buitenzonwering. Beide worden gevoed door de energiezuinige luchtwarmtepompen op het dak welke voor hun stroomvoorziening vaak kunnen rekenen op de zonnepanelen van het Warehouse.

Onder het parkeerterrein rond het gebouw zijn waterretentiekratten geplaatst om zo het gemeente riool te ontzien en de regenval op een natuurlijke manier te laten infiltreren in de bodem. De laadkuil kan flexibel ingezet worden als extra parkeerplaats voor grote evenementen zodat er minder parkeerplekken nodig zijn. Door deze oplossing is meer ruimte vrij gekomen voor vergroening rond het gebouw.

Door optimaal gebruik te maken van daglicht, uitzicht op de groene omgeving en een geraffineerde indeling met een atriumtrap en vides die visuele connectie, beweging en ontmoeting stimuleert, draagt de nieuwbouw van HAVEP tevens bij aan het welzijn van de gebruikers. Deze connectie met de omgeving is doorgezet rondom het gebouw waar de overgang van het pand naar omgeving vormgegeven is als een openbaar park.

Circulair hout en biobased materialen
Het nieuwe bedrijfsgebouw van HAVEP is een voorloper op het gebied van circulair bouwen. In het ontwerp is zo efficiënt mogelijk met grondstoffen omgaan en hoog ingezet op het besparen, hergebruiken en slim gebruiken van materiaal. Door goed te kijken naar de levensduur en de oorsprong van de materialen heeft het gebouw een lage milieu prestatie score en dus lage milieu-impact.
Zo bestaat de zonneluifel uit gerecyclede constructiedelen van het oude HAVEP gebouw. De houten planken op de gevel van HAVEP zijn afkomstig uit een ander bijzonder donorgebouw; de karakteristieke Tripolis gebouwen op de Amsterdamse Zuidas. Tripolis is ontworpen door de beroemde architect Aldo van Eyck en wordt momenteel grondig gerenoveerd. Het sterke Iroko hout dat van Eyck in de gevels verwerkte, kon niet opnieuw terug geplaatst worden en krijgt nu een tweede leven in de nieuwbouw van HAVEP.

Iroko hout is afkomstig uit de Afrikaanse regenwouden. Voor het architectenbureau normaal gesproken een reden om het hout niet meer te gebruiken. Maar vanwege zijn krachtige eigenschappen is het wel uitermate geschikt voor hergebruik uit een donorgebouw. Het verwerken van het donorhout bleek in de praktijk nog een flinke uitdaging. Want voor een gevarieerd effect had van Eyck elke gevelplank van Tripolis net een iets ander formaat gegeven. Daarnaast moest rekening gehouden worden met het feit dat hout een levend materiaal is waardoor iedere plank z’n eigen kromstand vertoonde. Om het donorhout te kunnen verwerken in het ontwerp moest iedere gevelplank dus individueel ingepast en uitgewerkt worden. Door te werken met de bestaande afmetingen en karaktereigenschappen van het donorhout krijgt de circulaire houten gevel van HAVEP een zelfde dynamische effect als van Eyck met de iconische Tripolis gebouwen voor ogen had.

De overige toegepaste materialen zijn voornamelijk biobased en recyclebaar. De gevel is opgebouwd uit materialen die 100% recyclebaar zijn en de draagconstructie bestaat uit hout dat geprefabriceerd en demontabel is. Voor de gevelopeningen is gebruik gemaakt van Accoya houten kozijnen wat een milieuvriendelijk verduurzaamde houtsoort is op basis van het snelgroeiende Radiata Pine. Door de zeer doeltreffende verduurzaming is het hout 50 jaar bestand tegen de weersinvloeden zonder dat daar een lak- of verflaag voor nodig. Na de gebruiksfase is het hout door zijn natuurlijke behandeling volledig biologisch afbreekbaar. Dit alles maakt dat de kozijnen perfect passen in de Cradle to Cradle ontwerpgedachte.

Het kantoorgebouw is opgebouwd uit een houtconstructie met gelamineerde houten vuren kolommen en liggers met wanden en vloeren van CLT. Het Warehouse is gemaakt van volledige gelamineerde vuren houten constructie.

Voor die isolatie van het pand is in grote mate gebruik gemaakt van vlasdekens, deze isolatievorm is een natuurlijk restproduct van de linnenindustrie waarmee HAVEP ingezet heeft op één van de reststromen uit de kledingproductie. Doordat vlas van zichzelf een vochtregulerende werking heeft zijn er ook vele vierkante meters plastic dampfolie bespaard tijdens de bouw.

Flexibel en toekomstgericht
Het nieuwe bedrijfsgebouw van HAVEP is flexibel in gebruik. De vorm van het gebouw, de constructie en het installatiesysteem zijn zo ontworpen dat er in de toekomst eenvoudig veranderingen in het gebouw aangebracht kunnen worden zonder dat er delen gesloopt moeten worden.

Project details

Gegevens

Naam en plaats Havep - Goirle
Bruto vloeroppervlak 9.000 m²
Programma Kantoor en warehouse
Start ontwerp September 2019
Oplevering Januari 2022
Duurzaamheidskenmerken Circulair ontwerp, houten constructie, biobased materialen, hergebruik gevel elementen van donor gebouw, optimaal gebruik van daglicht, gezond werken in een kantoor tussen het groen.

Ontwerpteam

Opdrachtgever VP Capital / HAVEP
Gebruiker HAVEP
Project architect Paul de Ruiter
Project team Joris Korbee, Marieke Sijm, Alex Pieterse, Matthijs Engele, Mark Homminga
Bouwdirectie P&H adviseurs
Aannemer Hurks & P&H adviseurs
Landschapsarchitect Advies- en Ontwerpbureau Geert Janssen
Constructeur Luning ingenieurs
Overige betrokken partijen Batenburg - e-installaties Megens - w-installaties Wijnen - sprinklerinstallatie DENK-W! - installatieadvies DGMR ingenieurs – bouwfysica BIS Econocom - interieurontwerp Boost Logix – logistiek advies VKP - gevelbouw en montage Isovlas - gevelbouw Arcon houtconstructies - houtbouw

Deel deze pagina