Paul de Ruiter
Architects

Lloyd Yard

Duurzaam en energieneutraal ontwerp dat aansluit bij de historie van de Rotterdamse Lloydpier

Low res Aiste Rakauskaite 1
1919 Aiste Rakauskaite Maasvenster Swing
1919 Aiste Rakauskaite Frontal Drone
1919 Aiste Rakauskaite Street Context
1919 Aiste Rakauskaite Black Houses
1919 Aiste Rakauskaite Staircase Garden
1919 Aiste Rakauskaite Sidestreet
1919 Aiste Rakauskaite Lloyd Yard and Babel
1919 Aiste Rakauskaite Streetview
1919 Aiste Rakauskaite Inside Garden
1919 Aiste Rakauskaite Inside Garden Detail
1919 Aiste Rakauskaite Maasvenster
1919 Aiste Rakauskaite Urban Context
1919 Aiste Rakauskaite Droneshot
1919 Lloyd Yard Schetsen
Lloyd Yard plan 0 ground floor
Lloyd Yard plan 2nd floor
Lloyd Yard plan 4th floor
191122 elements edit
191122 370 gate axo
1 / 20

Loop je over de Lloydpier in het voormalige havengebied in Rotterdam, dan is het bedrijvige verleden nog sterk voelbaar. Hier stonden robuuste loodsen en vertrokken schepen de wereld over. En op deze plek, in het hart, ontwierpen Paul de Ruiter Architects, WE architecten en ZUS landschapsarchitecten in opdracht van Kondor Wessels Vastgoed Lloyd Yard; een uniek duurzaam (MPG 0,65) en energieneutraal (EPC 0,0) ontwerp dat aansluit bij de historie van de Lloydpier. Stevige panden met duurzame en ruimtelijke woningen en veel mogelijkheden om buiten te zijn, om elkaar te leren kennen en samen activiteiten te ondernemen. Blikvanger is het publiek toegankelijke “Maasvenster” dat bewoners en bezoekers vanaf de werf een schitterend uitzicht biedt over de Maas

Thema's:
Woningbouw, Energieneutraal

Variatie aan woningen in een gezonde, natuurinclusieve leefomgeving.

De naam Lloyd Yard is niet zo maar gekozen. Lloyd refereert aan het verleden van het havengebied en Yard verwijst naar de communitybuilding voor alle bewoners die gestimuleerd wordt door de gemeenschappelijke binnenwerf, het Maasvenster en de collectieve daken met moestuin en dakkas. Lloyd Yard biedt een variatie aan ruimtelijke woningen met grote buitenruimtes in een gezonde, inclusieve leefomgeving. Daarom heeft Lloyd Yard multifunctionele daken voor energie-opwekking, de opvang en het hergebruik van regenwater, de productie van gezonde voeding en voor een prettig verblijf. Gevels worden gebruikt voor een groene omgeving die de biodiversiteit in de binnenstad versterkt. Kortom, Lloyd Yard is een stoere plek, maar ook een gezonde plek voor mensen, dieren en planten. Ideaal voor stedelijke mensen die zich aangetrokken voelen door het ongepolijste karakter van dit unieke stukje Rotterdam.

Elke levensfase een passende woning

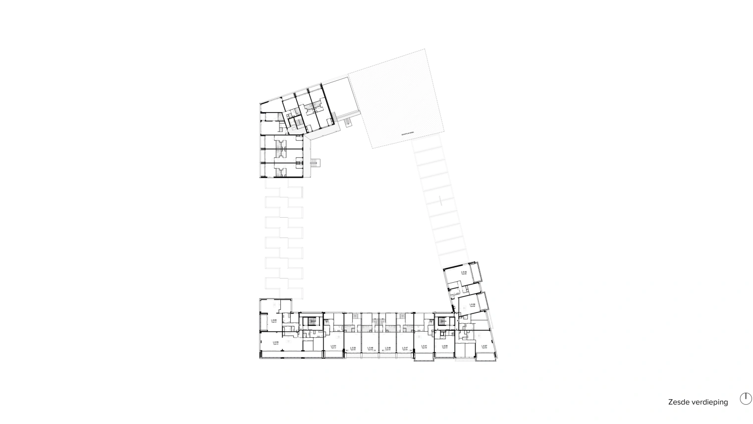
Steeds meer mensen met uiteenlopende woonwensen willen in Rotterdam wonen. Lloyd Yard speelt hier met een gevarieerd woningaanbod op in. Het ontwerp bestaat uit zes blokken met in totaal circa 135 woningen en tien zelfbouwkavels. De verschillende blokken krijgen allen robuuste gevelkaders, die de blokken verbinden. Het afwisselend gevelbeeld met dynamische raamopbouw maakt de diversiteit van de woningtypes zichtbaar. 

Aan de Kratonkade met uitzicht op de Schiehaven worden middeldure huur woningen gerealiseerd. Aan de Lloydkade met uitzicht op de Maas bevinden zich koopwoningen met een gemiddelde oppervlakte groter dan 120 m². Op de hoek van de plint is ruimte voor horeca die het woongebied een levendige en aantrekkelijke dynamiek geeft. Tussen de kades zijn aan de westzijde de rug-aan-rug stadswoningen en aan oostzijde de zelfbouwkavels gesitueerd. 

De appartementen met extra hoge verdiepingen en maisonnettes met houten vloeren voorzien van grote vides zijn niet alleen ruimtelijk maar ook flexibel in gebruik. Een extra kamer is bij gezinsuitbreiding of uithuisgaande kinderen relatief eenvoudig gerealiseerd of weggehaald.

Collectieve buitenruimtes

Naast de individuele tuintjes en groene balkons heeft Lloyd Yard spannende gemeenschappelijke buitenruimtes, zoals de overwoekerde binnenwerf, het Maasvenster met uitzicht op de Maas, de dakkas en de dakmoestuin op het dak van het Maasvensterblok. Iedere bewoner kan hier genieten van zon, rust, frisse lucht, uitzicht en verse groenten en kruiden.

De avontuurlijke, voor alle bewoners toegankelijke binnenwerf draagt bij aan een gezonde leefomgeving doordat hij uitnodigt om meer naar buiten te gaan. Alle buitenruimtes die bedoeld zijn voor gezamenlijk gebruik, zijn duidelijk herkenbaar door het industriële karakter: cortenstaal met een roestig uiterlijk, begroeid met klimplanten als hedera, wintergroen, rozen en blauwe regen.

In de bodem van de werf zijn nog ondergrondse obstakels aanwezig, die we markeren met objecten bovengronds. Ze vormen een directe verwijzing naar het verleden van de werf. De beplanting in de binnenwerf bestaat uit een kruiden- en bloemrijk grasmengsel en tredplanten tussen de halfopen verharding. Via daken, Maasvenster en de poorten groeit het groen buiten platgetreden paden. Het aantal bomen blijft beperkt om open zicht te houden vanuit de woning. Bomen zijn vanaf de straat door de poorten zichtbaar, wat het groene karakter van buitenaf benadrukt.

Levendige horecahoek 

De hoek van Lloydkade en Loods Celebes wordt een gezellig, goed zichtbaar, levendige horecahoek die aansluit op de wensen van de nieuwe bewoners en bezoekers van de Lloydpier en tevens een herkenningspunt wordt voor de buurt. Een prima plek om te genieten van deze bijzondere locatie aan de Maas.

Een gezonde leefomgeving voor iedereen

Rotterdam wil de leef kwaliteit in de stad verbeteren en is gefocust op minder CO2-uitstoot, een betere luchtkwaliteit, minder geluidsoverlast en een economisch sterke, aantrekkelijke en gezonde stad. Lloyd Yard draagt bij aan de duurzame ambities van Rotterdam door in het ontwerp en de uitvoer in te zetten op energieneutraliteit, circulariteit, schone mobiliteit en (bouw) logistiek, klimaatadaptie en het creëren van een gezonde groene leefomgeving met meer biodiversiteit. 

Project details

Gegevens

Programma Appartementen, stadswoningen, zelfbouwkavels, horeca en parkeergarage
Duurzaamheidskenmerken Energieneutraal EPC = 0.0 en de MPG 0,65

Ontwerpteam

Opdrachtgever Kondor Wessels Vastgoed
Ontwerp Paul de Ruiter Architects en WE Architecten
Project architect Paul de Ruiter en Martijn van Gameren
Aannemer Kroon en de Koning
Adviseur installaties HVTC
Adviseur duurzaam bouwen DGMR
Landschapsarchitect ZUS
Constructeur Pieters Bouwtechniek

Deel deze pagina