Paul de Ruiter
Architects

De Valschermkade

Practice what you Preach

1 Valschermkade image
Valschermkade Open Closed
0709 Sonia Arrepia Paul de Ruiter Studio web 25
0709 Sonia Arrepia Paul de Ruiter Studio web 1
2 Valschermkade image 6
2 Valschermkade image 4
0709 tvdv VSK439 v2
0709 tvdv VSK451 v2
Pieter Kers R81 438549 Valschermkade
2 Valschermkade image 2
2 Valschermkade image 3
0709 cross section installation
2 Valschermkade image 5
1 / 13

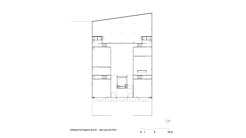
Aan de Valschermkade, gelegen in het creatieve industriegebied de Schinkel binnen de Amsterdamse ring van de A10 ontwikkelden we zelf een nieuw duurzaam kantoorpand. Een voormalige staalwerkplaats werd volledig gerenoveerd en omgebouwd tot een duurzaam kantoor voor Paul de Ruiter Architects waarin duurzaamheid voorop stond.

Thema's:
Kantoren, Interieur, Herontwikkeling

Een groen hart

Met de renovatie van een bestaand bedrijfshal maakte Paul de Ruiter Architects de eerste duurzame keuze. De fundering, de muren en het dak van de hal vormde de basis van de transformatie van de bedrijfshal uit 1980 tot huisvesting voor het architectenbureau. Het oude bakstenen kantoor dat voor de hal stond heeft plaatsgemaakt voor een volledig glazen gevel, die ruime daglichttoetreding op de werkplekken mogelijk maakt en de plek waar het kantoor stond is nu de plaats om onze fietsen te parkeren maar bovenal een fantastisch plek om met mooi weer buiten te werken en te lunchen.

Gerecyclede en niet giftige biobased materialen.

In de 6 meter hoge bestaand hal is op de bestaande fundering een lichte magazijnstellingsvloer geplaatst waardoor een groot aantal extra werkplekken zijn gecreëerd. Om extra daglicht op de werkvloer te krijgen is er een atrium gemaakt met een daklicht. In dit atrium is een kunstwerk c.q. bomentafel door Anouk Vogel ontworpen, wat de sociale groene hart van het gebouw is geworden. Voor de bouwmaterialen zijn gerecyclede en niet giftige biobased materialen gebruikt en is het meubilair geheel volgens het C2C principe. Het interieur heeft ipv plastic Corona schermen planten bakken die de werkplekken van elkaar scheiden.

Koude en warmteopslag in de bodem.

We hebben ons kantoor ontworpen volgens de Trias Energetica principes waar we zwaar hebben geïsoleerd en onze energie krijgen uit een duurzame monobron onder ons kantoor. Op 105 meter diep inde grond hebben we de koude lucht van de winter opgeslagen die we gebruiken voor de koeling in de zomer. De warmte van de zomer wordt eveneens in de bodem opgeslagen maar op 70 meter diepte. Deze warmte wordt in de winter gebruikt om het pand te verwarmen. Warmtepompen ondersteunen het proces van koeling en verwarming. Het pand is onlangs door installatie adviesbureau doorgerekend en heeft een energie label A++.

Chameleon skin

De voorgevel is voorzien van beweegbare schermen die we in 1999 voor de villa Deys hebben ontwikkeld. Overdag in geopende toestand vormen ze een luifel en werend ze de zon en ’s nachts gaan ze naar beneden en sluiten ze de gevel af tegen inbraak. De beweegbare gevel bestaat uit metalen platen, die geperforeerd zijn om een open karakter te behouden als zij gesloten zijn. Wanneer de luiken worden geopend, verheffen ze zich als een luifel boven de glazen gevel.

Project details

Gegevens

Bruto vloeroppervlak 970 m²
Programma Duurzaam bedrijfsverzamelgebouw
Start ontwerp Juni 2007
Start bouw Mei 2008
Oplevering Mei 2009
Locatie De Schinkel, Amsterdam

Ontwerpteam

Opdrachtgever Paul de Ruiter Architects
Project architect Paul de Ruiter
Project team Roel Rutgers, Annika Hermann, Nicolle Flagiello, Willem Jan Landman
Adviseur installaties Stauffer Technical Consultancy
Aannemer Bouwbedrijf M.J. de Nijs en Zonen
Kunstwerk Anouk Vogel
Constructeur Broersma
Adv․ kosten Bouwhaven Consultants
W-Installateur ETB Vos
E-Installateur Interdaad Installbouw
Interieur Paul de Ruiter Architects
Fotografie Pieter Kers

Deel deze pagina