1226 PDR Jeroen Musch DSC 7010 web
1226 PDR Tim van de Velde PLK403 2
1226 PDR Tim van de Velde PLK398 2
1226 PDR Tim van de Velde PLK004 2
1226 PDR Jeroen Musch DSC 6953 2
1226 PDR Tim van de Velde PLK863 2
1226 PDR Jeroen Musch DSC 6937
1226 PDR Tim van de Velde PLK807 2
1226 PDR Jeroen Musch DSC 8785
1226 PDR sebastian van damme 1951
1226 PDR Tim van de Velde PLK993 2
Cross section
Section 1
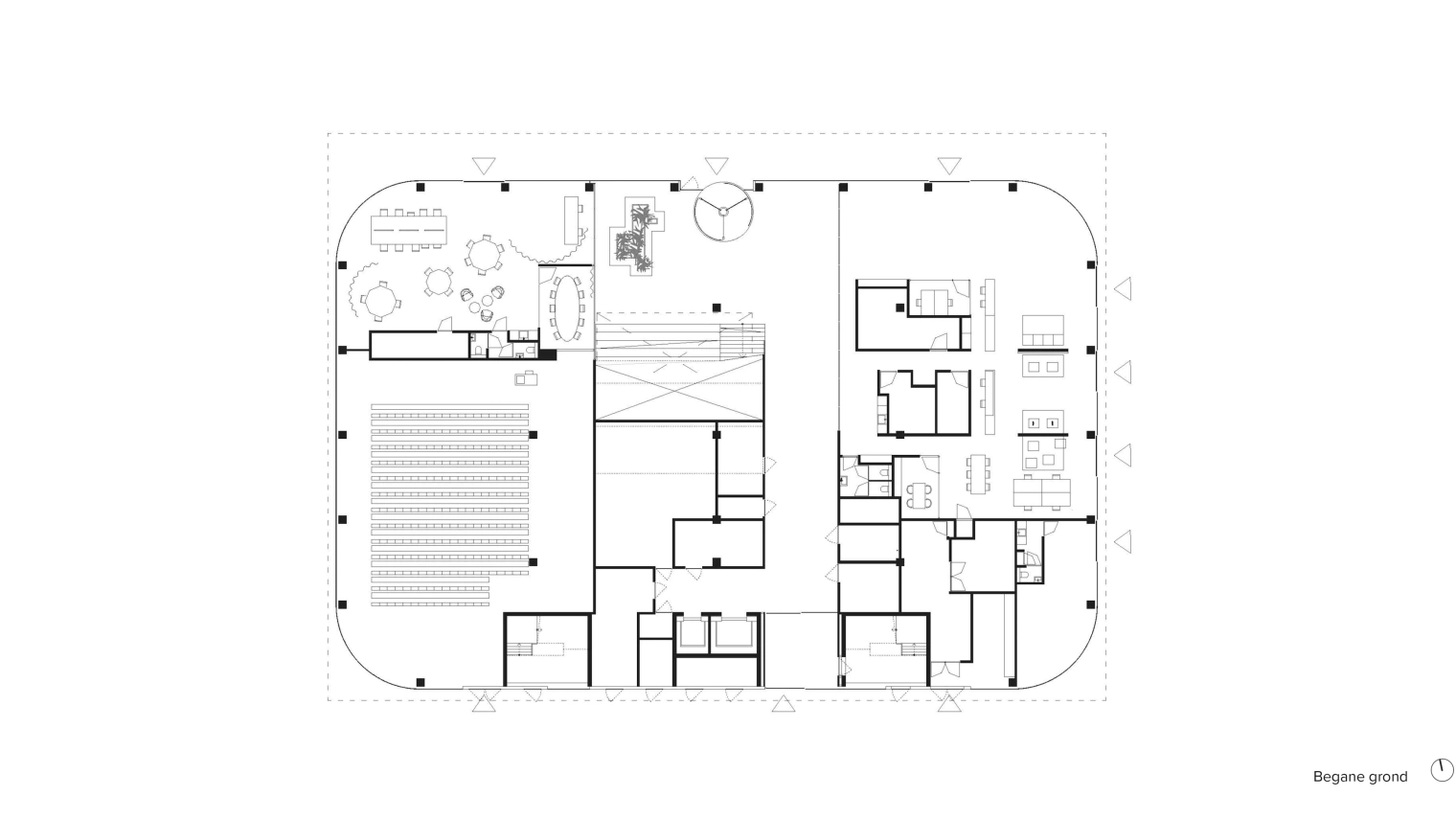
1226 Polak plattegronden BG web
1226 Polak plattegronden Verdieping 3 web
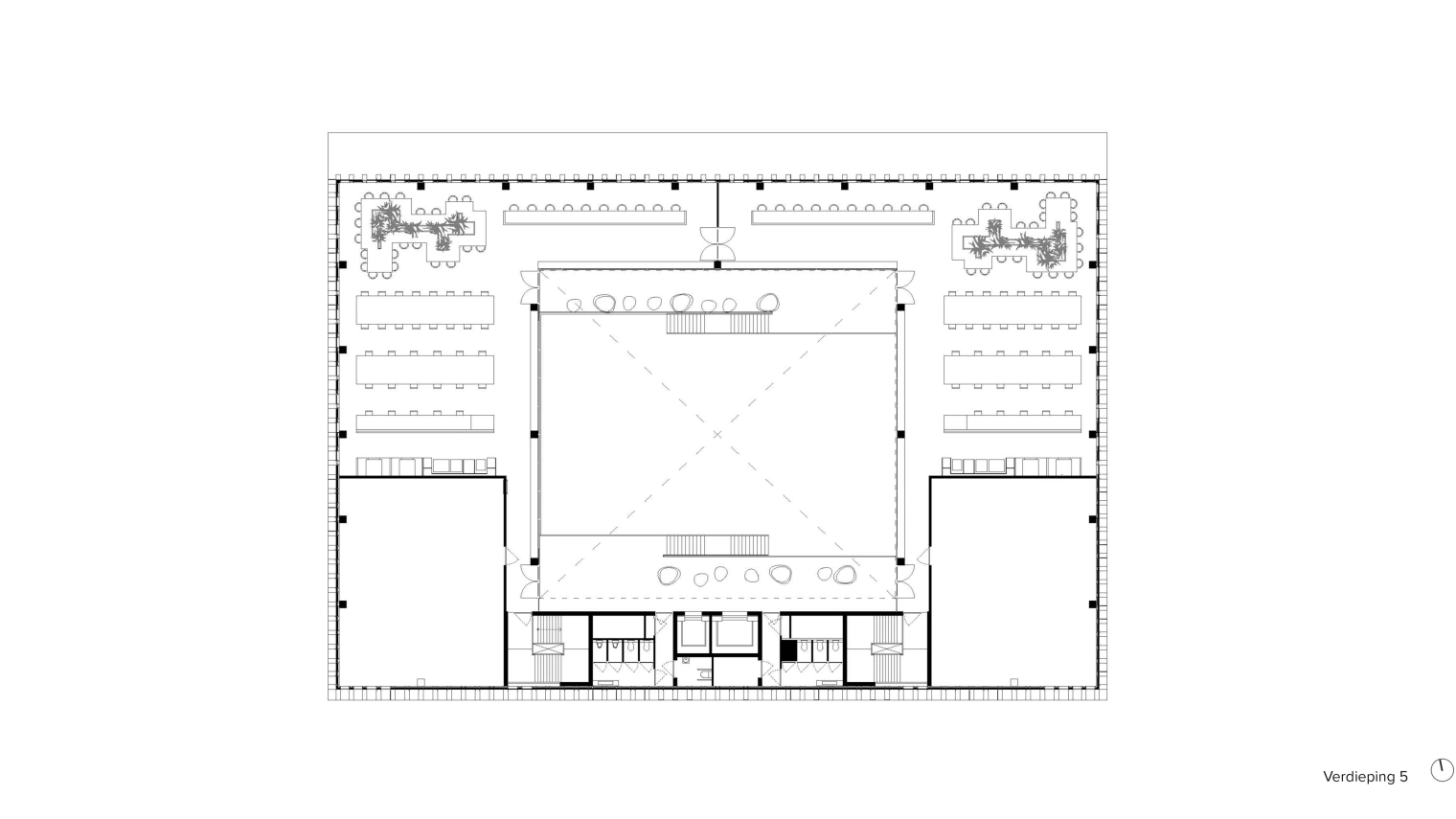
1226 Polak plattegronden Verdieping 5 web
MFO 2
MFO 3
1 / 19

Polak Building

Back to overview

The changing educational landscape demands a learning environment that is continuously connected to society and the wider community. This was also the vision of Erasmus University Rotterdam. They asked us to design both the interior and exterior of their new university building. This presented us with the perfect opportunity to design a fully integrated and sustainable building where the pleasant study environment inside is connected to campus life outside. A learning environment where students and staff inspire each other.

From bustle to tranquility

The interior design is fully tailored to the needs of its various users. To allow large groups of students to move freely between the entrance and their classes, the lecture halls are located directly on the first floor. Students studying independently or in smaller groups can find a quiet work environment on the floors above. These can be reached via the two spiral staircases that lead to the upper floors.

From floor to seating area with plenty of wood

The design is playful and unusual. The wooden strip that separates the meeting area near the atrium from the walking routes frequently changes function. For example, it sometimes forms part of the floor, later serves as a seating area, and then as a work table. The abundance of wood and the bright colors found throughout give the interior a pure and warm feel. Naturally, only natural and sustainable materials have been used here as well. On the higher floors, you'll find the peace and quiet to brainstorm new ideas.

Working with sunlight

The stepped layout of the atrium increases in size as it ascends. The major advantage is that daylight flows freely, even reaching the podium steps at the base of the building. The atrium's glass roof is designed to block direct sunlight. This allows for optimal daylight penetration while maintaining a comfortable temperature.

The wind blows from all directions

Our goal was to design a transparent facade that strengthens the connection between indoors and outdoors. To let in daylight while simultaneously blocking excess solar heat, we designed special louvers. These louvers vary in depth depending on the wind direction, helping to protect the glass from direct sunlight and shadows. From the outside, the louvers are staggered, giving the transparent university building a playful and modern look.

Natuurlijk als het kan, mechanisch als het moet

Onze visie is: Natuurlijk als het kan en mechanisch als het moet. Met een duurzame klimaatinstallatie en optimale isolatie maakten we het universiteitsgebouw energiezuinig. Door slim gebruik te maken van de aanwezige luchtstromen hebben we voor het gehele gebouw natuurlijke ventilatie kunnen realiseren. Dat geldt ook voor het daglicht die kunstmatige verlichting overbodig maken. We verwerkten daarnaast vele duurzame technieken zoals warmte- en koudeopslag in de bodem en energieterugwinning.

Program
Education Building
Location
Burgemeester Oudlaan, Rotterdam
Completion
2015
Client
Erasmus University Rotterdam (EUR)
Parties Involved
Juurlink [+] Geluk, Bureau J van 't Spijker, van Rossum, LBP Sight, Croon, SMT Bouw, Palte, VIAC, bbn adviseurs, Wolter & Dros TBI Techniek
Photography
Jeroen Musch, Tim van de Velde, Sebastian van Damme